
Orientační cena domu na klíč – 2.350.000,- CZK včetně DPH 12%
kompletní projektová dokumentace k stavebnímu řízení
Pevná ocelová a dřevěná konstrukce
Vnější stěny jsou obloženy vysoce kvalitními palubkami nebo omítkou
Tepelná izolace (podlaha/stěny/strop): 300/300/300 mm
Profily UW a CW 100 mm
Zvukově tepelná izolace Rockwool Rockmin Plus 100 mm
Rigips RBI 2 000×1 250×12,5 mm impregnovaná
vazníková střešní konstrukce z jeklu 60×40 a 40×40 mm
vysoko difuzní střešní membrána jutadach
střešní latě (latě a kontralatě) 40×60
prkno 24×140 mm
plechová střešní krytina Satjam Rapid s příslušenstvím
Sklon střechy – 30 stupňů
6komorový systém,
instalační hloubka: 85 mm,
systém s centrálním těsněním (3 těsnění),
klasický design křídla (nezapuštěný Classic-Line),
testem potvrzená třída odolnosti proti vloupání RC2,
k dispozici v mnoha barevných variantách,
součinitel prostupu tepla Uw: 0,76 W/m²K (pro referenční okno s rozměry 1230*1480 mm, Ug = 0,5 W/m²K).
Řada IDEAL 8000 otevírá nové možnosti ve výrobě venkovních dveří. Díky vícekomorové konstrukci, montážní hloubce 85 mm a možnosti použití zasklení a výplní o šířce až 50 mm se výrazně zlepšily tepelně izolační parametry konstrukce a dosáhlo se hodnoty Uf až 1,1 W/m²K.
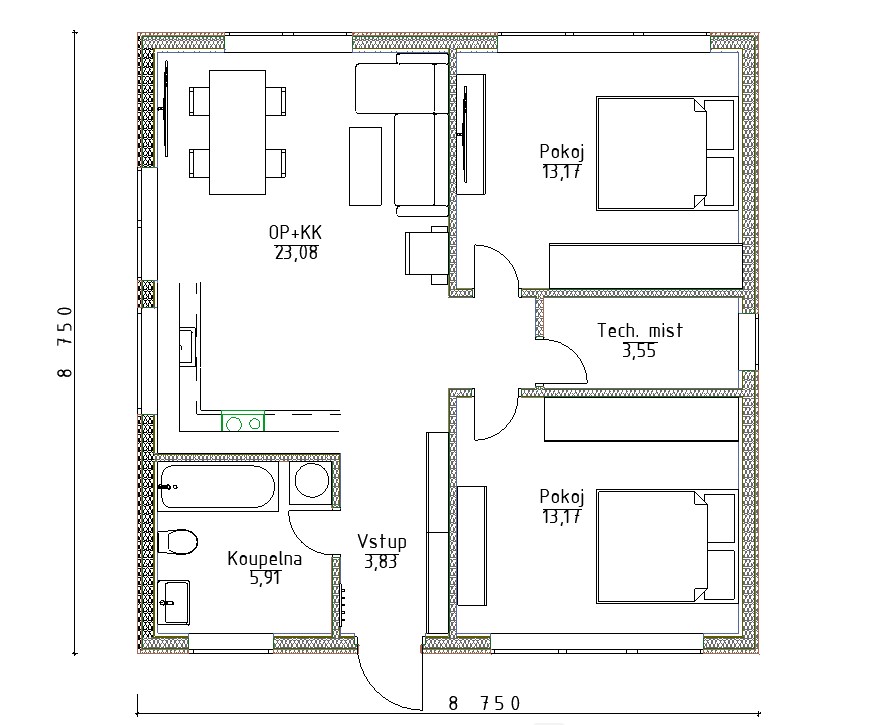
dle projektové dokumentace
fasádní EPS 70 100 mm
lepící pěna Soudal ETICS BOND
armovací síťka Vertex
lišty zakládací, rohové profily, okenní a soklové
natažení ochranné výstužné vrstvy kompozitním systém
barevná silikonová omítka, zrnitost 1,5mm
V koupelně a chodbě – dlažba
V obýváků a ložnice – plovoucí podlahy 8mm EGGER
dle projektové dokumentace
zásuvky a vypínače Schneider Asfora bila
zpráva o revizi elektrického zařízení, dle ČSN
schéma zapojení rozvodnice.
hliníková závěsná konstrukce z profilu SDK
parotěsná folie
Rigips RBI 2 000×1 250×12,5 mm impregnovaná
půdní výlez, dle projektové dokumentace
foliované dveře s povrchovou úpravou, bílé
obložkové zárubně – bílé, kliky.
realizace obkladů a dlažeb dle vzorníku
instalace závěsného modulu
elektrický žebříkový radiátor do koupelny
instalace sanity dle vzorníku a projektové dokumentace
sprcha nebo vana na vyber
sprchový set, směšovací
Průchodka pro krbová kamna
Elektrické podlahové vytápění
Termostaty
Elektrický žebříkový radiátor do koupelny
Instalace zařízení na klíč
Realizace základové desky nebo patek (je nutná prohlídka pozemku, zjištění možnosti přístupu na místo stavby)
Montáž – jímka, septik, nádrž na dešťovou vodu
Změna dispozicí domu – úprava domu dle individuálního návrhu
Přístřešek pro osobní automobil nebo garáž
Rozšíření elektroinstalace mimo projektovou dokumentaci
Rozšíření vodoinstalace mimo projektovou dokumentaci
Modifikace domu dle přání klienta
Případné rozšíření domu dalšími moduly
Možnost instalace rekuperační jednotky
Možnost realizace kuchyňské linky na míru
Průkaz energetické náročnosti budovy (PENB)
Průkaz požárně bezpečnostního řešení stavby (PBŘS)
Neváhejte nás kontaktovat. Upravíme vám nabídku dle vašich potřeb a požadavků.